兑宅吉凶分析:一房
收集一房兑宅的案例,按门主灶卫的分布吉凶,给出该住宅吉凶的总体评判,以及符合宅命相扶原则的住户的出身年份与性别。你可以使用智能工具分析自己的案例,不论是租房或是购房,一定有所启发。
分类主题:选房
分类主题:选房
八宅风水案例分析
建房
坎命人建房“门主灶卫”布局案例 艮命人建房“门主灶卫”布局案例
震命人建房“门主灶卫”布局案例
巽命人建房“门主灶卫”布局案例
离命人建房“门主灶卫”布局案例
坤命人建房“门主灶卫”布局案例
兑命人建房“门主灶卫”布局案例
乾命人建房“门主灶卫”布局案例
选房
坎宅吉凶分析:三房 艮宅吉凶分析:三房
震宅吉凶分析:三房
巽宅吉凶分析:三房
离宅吉凶分析:三房
坤宅吉凶分析:三房
兑宅吉凶分析:三房
乾宅吉凶分析:三房
坎宅吉凶分析:二房
艮宅吉凶分析:二房
震宅吉凶分析:二房
巽宅吉凶分析:二房
离宅吉凶分析:二房
坤宅吉凶分析:二房
兑宅吉凶分析:二房
乾宅吉凶分析:二房
坎宅吉凶分析:一房
艮宅吉凶分析:一房
震宅吉凶分析:一房
巽宅吉凶分析:一房
离宅吉凶分析:一房
坤宅吉凶分析:一房
兑宅吉凶分析:一房
乾宅吉凶分析:一房
催吉避凶
分析: 安立咨询 文盛
兑宅吉凶分析:一房
现在房地产进入了买方市场,不论是租房或是购房,有大量的房源可以选择。这为我们寻找风水好,且与自身命卦相宜的居所提供了难得的机会。
按八宅风水理论,按住宅的主进气口可以确定其宅卦,如大门向东,即为兑宅。 由其门主灶卫的分布,它可以是吉宅,也可以是凶宅。更进一步,即使是吉宅,也有选择性,只适合部分人居住。
本文收集一房兑宅的案例,分析有两步:第一,判断兑宅的吉凶;第二,如果是向吉,给出适合居住者的出身年份与性别。
你可以用智能工具分析自己的案例: 吉凶分析
是否兑宅?你可用罗盘现场测量或加载平面图到:图解宅卦



按八宅风水理论,按住宅的主进气口可以确定其宅卦,如大门向东,即为兑宅。 由其门主灶卫的分布,它可以是吉宅,也可以是凶宅。更进一步,即使是吉宅,也有选择性,只适合部分人居住。
本文收集一房兑宅的案例,分析有两步:第一,判断兑宅的吉凶;第二,如果是向吉,给出适合居住者的出身年份与性别。
你可以用智能工具分析自己的案例: 吉凶分析
是否兑宅?你可用罗盘现场测量或加载平面图到:图解宅卦
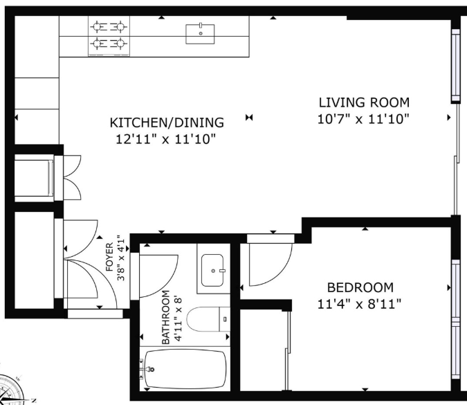
一房户型 1:温哥华乔治公园公寓
宅卦:兑(门向东)

门: 90(°) 卯山 方位-震 绝命: 坐凶向吉
主: 306(°) 戌山 方位-乾 生气: 坐吉向凶 +
卫: 121(°) 辰山 方位-巽 六煞: 坐凶向吉 +
灶: 162(°) 丙山 方位-离 五鬼: 坐凶向凶 -
综合分数为1,卦象一般,强烈建议崔吉避凶。
门: 90(°) 卯山 方位-震 绝命: 坐凶向吉
主: 306(°) 戌山 方位-乾 生气: 坐吉向凶 +
卫: 121(°) 辰山 方位-巽 六煞: 坐凶向吉 +
灶: 162(°) 丙山 方位-离 五鬼: 坐凶向凶 -
综合分数为1,卦象一般,强烈建议崔吉避凶。
一房户型 2:温哥华乔治公园公寓
宅卦:兑(门向东)

门: 35(°) 丑山 方位-艮 延年: 坐吉向吉 ++
主: 128(°) 巽山 方位-巽 六煞: 坐凶向吉
灶: 316(°) 乾山 方位-乾 生气: 坐吉向凶
卫: 73(°) 甲山 方位-震 绝命: 坐凶向吉 +
综合分数为3,较好的卦象,但需要崔吉避凶。此宅卦为兑,属于西四命。按宅命相扶,以下年份出生的兑命人入住最为恰当。
男性:1966, 1975, 1984, 1993, 2002, 2011, 2020。
女性:1965, 1974, 1983, 1992, 2001, 2010, 2019。
此外,以下年份出生的人同属西四命。亦有宅命相扶之效,入住也为恰当。
男性:1962(坤), 1965(艮), 1967(乾), 1968(坤), 1971(坤), 1974(艮), 1976(乾), 1977(坤), 1980(坤), 1983(艮), 1985(乾), 1986(坤), 1989(坤), 1992(艮), 1994(乾), 1995(坤), 1998(坤), 2001(艮), 2003(乾), 2004(坤), 2007(坤), 2010(艮), 2012(乾), 2013(坤), 2016(坤), 2019(艮)。
女性:1960(坤), 1963(艮), 1964(乾), 1966(艮), 1969(坤), 1972(艮), 1973(乾), 1975(艮), 1978(坤), 1981(艮), 1982(乾), 1984(艮), 1987(坤), 1990(艮), 1991(乾), 1993(艮), 1996(坤), 1999(艮), 2000(乾), 2002(艮), 2005(坤), 2008(艮), 2009(乾), 2011(艮), 2014(坤), 2017(艮), 2018(乾), 2020(艮)。
门: 35(°) 丑山 方位-艮 延年: 坐吉向吉 ++
主: 128(°) 巽山 方位-巽 六煞: 坐凶向吉
灶: 316(°) 乾山 方位-乾 生气: 坐吉向凶
卫: 73(°) 甲山 方位-震 绝命: 坐凶向吉 +
综合分数为3,较好的卦象,但需要崔吉避凶。此宅卦为兑,属于西四命。按宅命相扶,以下年份出生的兑命人入住最为恰当。
男性:1966, 1975, 1984, 1993, 2002, 2011, 2020。
女性:1965, 1974, 1983, 1992, 2001, 2010, 2019。
此外,以下年份出生的人同属西四命。亦有宅命相扶之效,入住也为恰当。
男性:1962(坤), 1965(艮), 1967(乾), 1968(坤), 1971(坤), 1974(艮), 1976(乾), 1977(坤), 1980(坤), 1983(艮), 1985(乾), 1986(坤), 1989(坤), 1992(艮), 1994(乾), 1995(坤), 1998(坤), 2001(艮), 2003(乾), 2004(坤), 2007(坤), 2010(艮), 2012(乾), 2013(坤), 2016(坤), 2019(艮)。
女性:1960(坤), 1963(艮), 1964(乾), 1966(艮), 1969(坤), 1972(艮), 1973(乾), 1975(艮), 1978(坤), 1981(艮), 1982(乾), 1984(艮), 1987(坤), 1990(艮), 1991(乾), 1993(艮), 1996(坤), 1999(艮), 2000(乾), 2002(艮), 2005(坤), 2008(艮), 2009(乾), 2011(艮), 2014(坤), 2017(艮), 2018(乾), 2020(艮)。
一房户型 3:温哥华乔治公园公寓
宅卦:兑(门向东)

门: 142(°) 巽山 方位-巽 六煞: 坐凶向吉
主: 50(°) 艮山 方位-艮 延年: 坐吉向吉 ++
灶: 233(°) 申山 方位-坤 天医: 坐吉向吉 +
卫: 102(°) 乙山 方位-震 绝命: 坐凶向吉 +
综合分数为4,较好的卦象,但需要崔吉避凶。此宅卦为兑,属于西四命。按宅命相扶,以下年份出生的兑命人入住最为恰当。
男性:1966, 1975, 1984, 1993, 2002, 2011, 2020。
女性:1965, 1974, 1983, 1992, 2001, 2010, 2019。
此外,以下年份出生的人同属西四命。亦有宅命相扶之效,入住也为恰当。
男性:1962(坤), 1965(艮), 1967(乾), 1968(坤), 1971(坤), 1974(艮), 1976(乾), 1977(坤), 1980(坤), 1983(艮), 1985(乾), 1986(坤), 1989(坤), 1992(艮), 1994(乾), 1995(坤), 1998(坤), 2001(艮), 2003(乾), 2004(坤), 2007(坤), 2010(艮), 2012(乾), 2013(坤), 2016(坤), 2019(艮)。
女性:1960(坤), 1963(艮), 1964(乾), 1966(艮), 1969(坤), 1972(艮), 1973(乾), 1975(艮), 1978(坤), 1981(艮), 1982(乾), 1984(艮), 1987(坤), 1990(艮), 1991(乾), 1993(艮), 1996(坤), 1999(艮), 2000(乾), 2002(艮), 2005(坤), 2008(艮), 2009(乾), 2011(艮), 2014(坤), 2017(艮), 2018(乾), 2020(艮)。
门: 142(°) 巽山 方位-巽 六煞: 坐凶向吉
主: 50(°) 艮山 方位-艮 延年: 坐吉向吉 ++
灶: 233(°) 申山 方位-坤 天医: 坐吉向吉 +
卫: 102(°) 乙山 方位-震 绝命: 坐凶向吉 +
综合分数为4,较好的卦象,但需要崔吉避凶。此宅卦为兑,属于西四命。按宅命相扶,以下年份出生的兑命人入住最为恰当。
男性:1966, 1975, 1984, 1993, 2002, 2011, 2020。
女性:1965, 1974, 1983, 1992, 2001, 2010, 2019。
此外,以下年份出生的人同属西四命。亦有宅命相扶之效,入住也为恰当。
男性:1962(坤), 1965(艮), 1967(乾), 1968(坤), 1971(坤), 1974(艮), 1976(乾), 1977(坤), 1980(坤), 1983(艮), 1985(乾), 1986(坤), 1989(坤), 1992(艮), 1994(乾), 1995(坤), 1998(坤), 2001(艮), 2003(乾), 2004(坤), 2007(坤), 2010(艮), 2012(乾), 2013(坤), 2016(坤), 2019(艮)。
女性:1960(坤), 1963(艮), 1964(乾), 1966(艮), 1969(坤), 1972(艮), 1973(乾), 1975(艮), 1978(坤), 1981(艮), 1982(乾), 1984(艮), 1987(坤), 1990(艮), 1991(乾), 1993(艮), 1996(坤), 1999(艮), 2000(乾), 2002(艮), 2005(坤), 2008(艮), 2009(乾), 2011(艮), 2014(坤), 2017(艮), 2018(乾), 2020(艮)。