震宅吉凶分析:二房
收集二房震宅的案例,按门主灶卫的分布吉凶,给出该住宅吉凶的总体评判,以及符合宅命相扶原则的住户的出身年份与性别。你可以使用智能工具分析自己的案例,不论是租房或是购房,一定有所启发。
分类主题:选房
分类主题:选房
八宅风水案例分析
建房
坎命人建房“门主灶卫”布局案例 艮命人建房“门主灶卫”布局案例
震命人建房“门主灶卫”布局案例
巽命人建房“门主灶卫”布局案例
离命人建房“门主灶卫”布局案例
坤命人建房“门主灶卫”布局案例
兑命人建房“门主灶卫”布局案例
乾命人建房“门主灶卫”布局案例
选房
坎宅吉凶分析:三房 艮宅吉凶分析:三房
震宅吉凶分析:三房
巽宅吉凶分析:三房
离宅吉凶分析:三房
坤宅吉凶分析:三房
兑宅吉凶分析:三房
乾宅吉凶分析:三房
坎宅吉凶分析:二房
艮宅吉凶分析:二房
震宅吉凶分析:二房
巽宅吉凶分析:二房
离宅吉凶分析:二房
坤宅吉凶分析:二房
兑宅吉凶分析:二房
乾宅吉凶分析:二房
坎宅吉凶分析:一房
艮宅吉凶分析:一房
震宅吉凶分析:一房
巽宅吉凶分析:一房
离宅吉凶分析:一房
坤宅吉凶分析:一房
兑宅吉凶分析:一房
乾宅吉凶分析:一房
催吉避凶
分析: 安立咨询 文盛
震宅吉凶分析:二房
现在房地产进入了买方市场,不论是租房或是购房,有大量的房源可以选择。这为我们寻找风水好,且与自身命卦相宜的居所提供了难得的机会。
按八宅风水理论,按住宅的主进气口可以确定其宅卦,如大门向西,即为震宅。 由其门主灶卫的分布,它可以是吉宅,也可以是凶宅。更进一步,即使是吉宅,也有选择性,只适合部分人居住。
本文收集二房震宅的案例,分析有两步:第一,判断震宅的吉凶;第二,如果是向吉,给出适合居住者的出身年份与性别。
你可以用智能工具分析自己的案例: 吉凶分析
是否震宅?你可用罗盘现场测量或加载平面图到:图解宅卦



按八宅风水理论,按住宅的主进气口可以确定其宅卦,如大门向西,即为震宅。 由其门主灶卫的分布,它可以是吉宅,也可以是凶宅。更进一步,即使是吉宅,也有选择性,只适合部分人居住。
本文收集二房震宅的案例,分析有两步:第一,判断震宅的吉凶;第二,如果是向吉,给出适合居住者的出身年份与性别。
你可以用智能工具分析自己的案例: 吉凶分析
是否震宅?你可用罗盘现场测量或加载平面图到:图解宅卦
二房户型 1:温哥华乔治公园公寓
宅卦:震(门向西)

门: 214(°) 未山 方位-坤 祸害: 坐凶向凶 -
主: 308(°) 乾山 方位-乾 五鬼: 坐凶向吉
卫: 246(°) 申山 方位-坤 祸害: 坐凶向凶 ++
灶: 235(°) 申山 方位-坤 祸害: 坐凶向凶 -
综合分数为0,卦象差,强烈建议调整回避。
门: 214(°) 未山 方位-坤 祸害: 坐凶向凶 -
主: 308(°) 乾山 方位-乾 五鬼: 坐凶向吉
卫: 246(°) 申山 方位-坤 祸害: 坐凶向凶 ++
灶: 235(°) 申山 方位-坤 祸害: 坐凶向凶 -
综合分数为0,卦象差,强烈建议调整回避。
二房户型 2:香港星凱堤岸公寓
宅卦: 震(门向西)

门: 231(°) 坤山 方位-坤 祸害: 坐凶向凶 -
主: 46(°) 艮山 方位-艮 六煞: 坐凶向凶 -
灶: 265(°) 酉山 方位-兑 绝命: 坐凶向吉 +
卫: 91(°) 卯山 方位-震 伏位: 坐吉向凶 -
综合分数为-2,卦象差,强烈建议调整回避。
门: 231(°) 坤山 方位-坤 祸害: 坐凶向凶 -
主: 46(°) 艮山 方位-艮 六煞: 坐凶向凶 -
灶: 265(°) 酉山 方位-兑 绝命: 坐凶向吉 +
卫: 91(°) 卯山 方位-震 伏位: 坐吉向凶 -
综合分数为-2,卦象差,强烈建议调整回避。
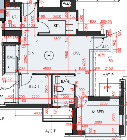
二房户型 3:温哥华乔治公园公寓
宅卦:震(门向西)

门: 314(°) 乾山 方位-乾 五鬼: 坐凶向吉
主: 253(°) 庚山 方位-兑 绝命: 坐凶向吉
灶: 183(°) 午山 方位-离 生气: 坐吉向吉 +
卫: 47(°) 艮山 方位-艮 六煞: 坐凶向凶 ++
综合分数为3,较好的卦象,但需要崔吉避凶。此宅卦为震,属于东四命。按宅命相扶,以下年份出生的震命人入住最为恰当。
男性:1961, 1970, 1979, 1988, 1997, 2006, 2015。
女性:1961, 1970, 1979, 1988, 1997, 2006, 2015。
此外,以下年份出生的人同属东四命。亦有宅命相扶之效,入住也为恰当。
男性:1960(巽), 1963(坎), 1964(离), 1969(巽), 1972(坎), 1973(离), 1978(巽), 1981(坎), 1982(离), 1987(巽), 1990(坎), 1991(离), 1996(巽), 1999(坎), 2000(离), 2005(巽), 2008(坎), 2009(离), 2014(巽), 2017(坎), 2018(离)。
女性:1962(巽), 1967(离), 1968(坎), 1971(巽), 1976(离), 1977(坎), 1980(巽), 1985(离), 1986(坎), 1989(巽), 1994(离), 1995(坎), 1998(巽), 2003(离), 2004(坎), 2007(巽), 2012(离), 2013(坎), 2016(巽)。
门: 314(°) 乾山 方位-乾 五鬼: 坐凶向吉
主: 253(°) 庚山 方位-兑 绝命: 坐凶向吉
灶: 183(°) 午山 方位-离 生气: 坐吉向吉 +
卫: 47(°) 艮山 方位-艮 六煞: 坐凶向凶 ++
综合分数为3,较好的卦象,但需要崔吉避凶。此宅卦为震,属于东四命。按宅命相扶,以下年份出生的震命人入住最为恰当。
男性:1961, 1970, 1979, 1988, 1997, 2006, 2015。
女性:1961, 1970, 1979, 1988, 1997, 2006, 2015。
此外,以下年份出生的人同属东四命。亦有宅命相扶之效,入住也为恰当。
男性:1960(巽), 1963(坎), 1964(离), 1969(巽), 1972(坎), 1973(离), 1978(巽), 1981(坎), 1982(离), 1987(巽), 1990(坎), 1991(离), 1996(巽), 1999(坎), 2000(离), 2005(巽), 2008(坎), 2009(离), 2014(巽), 2017(坎), 2018(离)。
女性:1962(巽), 1967(离), 1968(坎), 1971(巽), 1976(离), 1977(坎), 1980(巽), 1985(离), 1986(坎), 1989(巽), 1994(离), 1995(坎), 1998(巽), 2003(离), 2004(坎), 2007(巽), 2012(离), 2013(坎), 2016(巽)。