乾宅吉凶分析:三房
收集三房乾宅的案例,按门主灶卫的分布吉凶,给出该住宅吉凶的总体评判,以及符合宅命相扶原则的住户的出身年份与性别。你可以使用智能工具分析自己的案例,不论是租房或是购房,一定有所启发。
分类主题:选房
分类主题:选房
八宅风水案例分析
建房
坎命人建房“门主灶卫”布局案例 艮命人建房“门主灶卫”布局案例
震命人建房“门主灶卫”布局案例
巽命人建房“门主灶卫”布局案例
离命人建房“门主灶卫”布局案例
坤命人建房“门主灶卫”布局案例
兑命人建房“门主灶卫”布局案例
乾命人建房“门主灶卫”布局案例
选房
坎宅吉凶分析:三房 艮宅吉凶分析:三房
震宅吉凶分析:三房
巽宅吉凶分析:三房
离宅吉凶分析:三房
坤宅吉凶分析:三房
兑宅吉凶分析:三房
乾宅吉凶分析:三房
坎宅吉凶分析:二房
艮宅吉凶分析:二房
震宅吉凶分析:二房
巽宅吉凶分析:二房
离宅吉凶分析:二房
坤宅吉凶分析:二房
兑宅吉凶分析:二房
乾宅吉凶分析:二房
坎宅吉凶分析:一房
艮宅吉凶分析:一房
震宅吉凶分析:一房
巽宅吉凶分析:一房
离宅吉凶分析:一房
坤宅吉凶分析:一房
兑宅吉凶分析:一房
乾宅吉凶分析:一房
催吉避凶
分析: 安立咨询 文盛
乾宅吉凶分析:三房
现在房地产进入了买方市场,不论是租房或是购房,有大量的房源可以选择。这为我们寻找风水好,且与自身命卦相宜的居所提供了难得的机会。
按八宅风水理论,按住宅的主进气口可以确定其宅卦,如大门向东南,即为乾宅。 由其门主灶卫的分布,它可以是吉宅,也可以是凶宅。更进一步,即使是吉宅,也有选择性,只适合部分人居住。
本文收集三房乾宅的案例,分析有两步:第一,判断乾宅的吉凶;第二,如果是向吉,给出适合居住者的出身年份与性别。
你可以用智能工具分析自己的案例: 吉凶分析
是否乾宅?你可用罗盘现场测量或加载平面图到:图解宅卦


按八宅风水理论,按住宅的主进气口可以确定其宅卦,如大门向东南,即为乾宅。 由其门主灶卫的分布,它可以是吉宅,也可以是凶宅。更进一步,即使是吉宅,也有选择性,只适合部分人居住。
本文收集三房乾宅的案例,分析有两步:第一,判断乾宅的吉凶;第二,如果是向吉,给出适合居住者的出身年份与性别。
你可以用智能工具分析自己的案例: 吉凶分析
是否乾宅?你可用罗盘现场测量或加载平面图到:图解宅卦
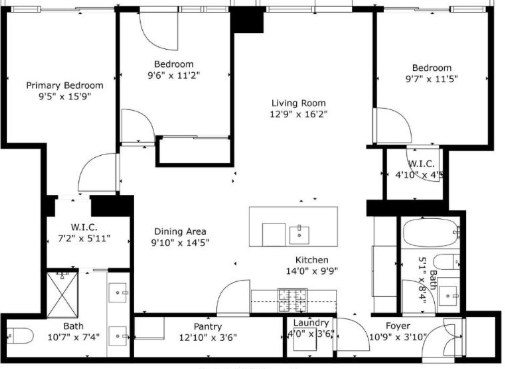
三房户型 1:温哥华山景公寓
宅卦: 乾(门向西南)

门: 160(°) 丙山 方位-离 绝命: 坐凶向凶 -
主: 267(°) 酉山 方位-兑 生气: 坐吉向凶 +
灶: 56(°) 寅山 方位-艮 天医: 坐吉向吉 +
卫: 140(°) 巽山 方位-巽 祸害: 坐凶向吉 +
综合分数为2,卦象一般,强烈建议崔吉避凶。
门: 160(°) 丙山 方位-离 绝命: 坐凶向凶 -
主: 267(°) 酉山 方位-兑 生气: 坐吉向凶 +
灶: 56(°) 寅山 方位-艮 天医: 坐吉向吉 +
卫: 140(°) 巽山 方位-巽 祸害: 坐凶向吉 +
综合分数为2,卦象一般,强烈建议崔吉避凶。
三房户型 2:温哥华山景公寓
宅卦: 乾(门向西南)

门: 93(°) 卯山 方位-震 五鬼: 坐凶向吉
主: 270(°) 酉山 方位-兑 生气: 坐吉向凶 +
灶: 120(°) 辰山 方位-巽 祸害: 坐凶向吉 +
卫: 72(°) 甲山 方位-震 五鬼: 坐凶向吉 +
综合分数为3,较好的卦象,但需要崔吉避凶。此宅卦为乾,属于西四命。按宅命相扶,以下年份出生的乾命人入住最为恰当。
男性:1967, 1976, 1985, 1994, 2003, 2012。
女性:1964, 1973, 1982, 1991, 2000, 2009, 2018。
此外,以下年份出生的人同属西四命。亦有宅命相扶之效,入住也为恰当。
男性:1962(坤), 1965(艮), 1966(兑), 1968(坤), 1971(坤), 1974(艮), 1975(兑), 1977(坤), 1980(坤), 1983(艮), 1984(兑), 1986(坤), 1989(坤), 1992(艮), 1993(兑), 1995(坤), 1998(坤), 2001(艮), 2002(兑), 2004(坤), 2007(坤), 2010(艮), 2011(兑), 2013(坤), 2016(坤), 2019(艮), 2020(兑)。
女性:1960(坤), 1963(艮), 1965(兑), 1966(艮), 1969(坤), 1972(艮), 1974(兑), 1975(艮), 1978(坤), 1981(艮), 1983(兑), 1984(艮), 1987(坤), 1990(艮), 1992(兑), 1993(艮), 1996(坤), 1999(艮), 2001(兑), 2002(艮), 2005(坤), 2008(艮), 2010(兑), 2011(艮), 2014(坤), 2017(艮), 2019(兑), 2020(艮)。
门: 93(°) 卯山 方位-震 五鬼: 坐凶向吉
主: 270(°) 酉山 方位-兑 生气: 坐吉向凶 +
灶: 120(°) 辰山 方位-巽 祸害: 坐凶向吉 +
卫: 72(°) 甲山 方位-震 五鬼: 坐凶向吉 +
综合分数为3,较好的卦象,但需要崔吉避凶。此宅卦为乾,属于西四命。按宅命相扶,以下年份出生的乾命人入住最为恰当。
男性:1967, 1976, 1985, 1994, 2003, 2012。
女性:1964, 1973, 1982, 1991, 2000, 2009, 2018。
此外,以下年份出生的人同属西四命。亦有宅命相扶之效,入住也为恰当。
男性:1962(坤), 1965(艮), 1966(兑), 1968(坤), 1971(坤), 1974(艮), 1975(兑), 1977(坤), 1980(坤), 1983(艮), 1984(兑), 1986(坤), 1989(坤), 1992(艮), 1993(兑), 1995(坤), 1998(坤), 2001(艮), 2002(兑), 2004(坤), 2007(坤), 2010(艮), 2011(兑), 2013(坤), 2016(坤), 2019(艮), 2020(兑)。
女性:1960(坤), 1963(艮), 1965(兑), 1966(艮), 1969(坤), 1972(艮), 1974(兑), 1975(艮), 1978(坤), 1981(艮), 1983(兑), 1984(艮), 1987(坤), 1990(艮), 1992(兑), 1993(艮), 1996(坤), 1999(艮), 2001(兑), 2002(艮), 2005(坤), 2008(艮), 2010(兑), 2011(艮), 2014(坤), 2017(艮), 2019(兑), 2020(艮)。