离宅吉凶分析:三房
收集三房离宅的案例,按门主灶卫的分布吉凶,给出该住宅吉凶的总体评判,以及符合宅命相扶原则的住户的出身年份与性别。你可以使用智能工具分析自己的案例,不论是租房或是购房,一定有所启发。
分类主题:选房
分类主题:选房
八宅风水案例分析
建房
坎命人建房“门主灶卫”布局案例 艮命人建房“门主灶卫”布局案例
震命人建房“门主灶卫”布局案例
巽命人建房“门主灶卫”布局案例
离命人建房“门主灶卫”布局案例
坤命人建房“门主灶卫”布局案例
兑命人建房“门主灶卫”布局案例
乾命人建房“门主灶卫”布局案例
选房
坎宅吉凶分析:三房 艮宅吉凶分析:三房
震宅吉凶分析:三房
巽宅吉凶分析:三房
离宅吉凶分析:三房
坤宅吉凶分析:三房
兑宅吉凶分析:三房
乾宅吉凶分析:三房
坎宅吉凶分析:二房
艮宅吉凶分析:二房
震宅吉凶分析:二房
巽宅吉凶分析:二房
离宅吉凶分析:二房
坤宅吉凶分析:二房
兑宅吉凶分析:二房
乾宅吉凶分析:二房
坎宅吉凶分析:一房
艮宅吉凶分析:一房
震宅吉凶分析:一房
巽宅吉凶分析:一房
离宅吉凶分析:一房
坤宅吉凶分析:一房
兑宅吉凶分析:一房
乾宅吉凶分析:一房
催吉避凶
分析: 安立咨询 文盛
离宅吉凶分析:三房
现在房地产进入了买方市场,不论是租房或是购房,有大量的房源可以选择。这为我们寻找风水好,且与自身命卦相宜的居所提供了难得的机会。
按八宅风水理论,按住宅的主进气口可以确定其宅卦,如大门向北,即为离宅。 由其门主灶卫的分布,它可以是吉宅,也可以是凶宅。更进一步,即使是吉宅,也有选择性,只适合部分人居住。
本文收集三房离宅的案例,分析有两步:第一,判断离宅的吉凶;第二,如果是向吉,给出适合居住者的出身年份与性别。
你可以用智能工具分析自己的案例: 吉凶分析
是否离宅?你可用罗盘现场测量或加载平面图到:图解宅卦


按八宅风水理论,按住宅的主进气口可以确定其宅卦,如大门向北,即为离宅。 由其门主灶卫的分布,它可以是吉宅,也可以是凶宅。更进一步,即使是吉宅,也有选择性,只适合部分人居住。
本文收集三房离宅的案例,分析有两步:第一,判断离宅的吉凶;第二,如果是向吉,给出适合居住者的出身年份与性别。
你可以用智能工具分析自己的案例: 吉凶分析
是否离宅?你可用罗盘现场测量或加载平面图到:图解宅卦
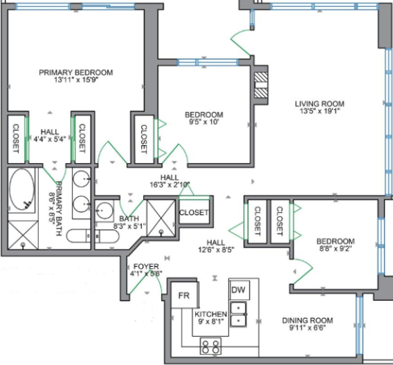
三房户型 1:香港星凱堤岸公寓
宅卦: 离(门向北)

门: 198(°) 丁山 方位-离 伏位: 坐吉向吉 ++
主: 357(°) 子山 方位-坎 延年: 坐吉向吉 ++
灶: 175(°) 午山 方位-离 伏位: 坐吉向吉 +
卫: 79(°) 甲山 方位-震 天医: 坐吉向凶 -
综合分数为4,较好的卦象,但需要崔吉避凶。此宅卦为离,属于东四命。按宅命相扶,以下年份出生的离命人入住最为恰当。
男性:1964, 1973, 1982, 1991, 2000, 2009, 2018。
女性:1967, 1976, 1985, 1994, 2003, 2012。
此外,以下年份出生的人同属东四命。亦有宅命相扶之效,入住也为恰当。
男性:1960(巽), 1961(震), 1963(坎), 1969(巽), 1970(震), 1972(坎), 1978(巽), 1979(震), 1981(坎), 1987(巽), 1988(震), 1990(坎), 1996(巽), 1997(震), 1999(坎), 2005(巽), 2006(震), 2008(坎), 2014(巽), 2015(震), 2017(坎)。
女性:1961(震), 1962(巽), 1968(坎), 1970(震), 1971(巽), 1977(坎), 1979(震), 1980(巽), 1986(坎), 1988(震), 1989(巽), 1995(坎), 1997(震), 1998(巽), 2004(坎), 2006(震), 2007(巽), 2013(坎), 2015(震), 2016(巽)。
门: 198(°) 丁山 方位-离 伏位: 坐吉向吉 ++
主: 357(°) 子山 方位-坎 延年: 坐吉向吉 ++
灶: 175(°) 午山 方位-离 伏位: 坐吉向吉 +
卫: 79(°) 甲山 方位-震 天医: 坐吉向凶 -
综合分数为4,较好的卦象,但需要崔吉避凶。此宅卦为离,属于东四命。按宅命相扶,以下年份出生的离命人入住最为恰当。
男性:1964, 1973, 1982, 1991, 2000, 2009, 2018。
女性:1967, 1976, 1985, 1994, 2003, 2012。
此外,以下年份出生的人同属东四命。亦有宅命相扶之效,入住也为恰当。
男性:1960(巽), 1961(震), 1963(坎), 1969(巽), 1970(震), 1972(坎), 1978(巽), 1979(震), 1981(坎), 1987(巽), 1988(震), 1990(坎), 1996(巽), 1997(震), 1999(坎), 2005(巽), 2006(震), 2008(坎), 2014(巽), 2015(震), 2017(坎)。
女性:1961(震), 1962(巽), 1968(坎), 1970(震), 1971(巽), 1977(坎), 1979(震), 1980(巽), 1986(坎), 1988(震), 1989(巽), 1995(坎), 1997(震), 1998(巽), 2004(坎), 2006(震), 2007(巽), 2013(坎), 2015(震), 2016(巽)。
三房户型 2:温哥华山景公寓
宅卦: 离(门向北)

门: 25(°) 丑山 方位-艮 祸害: 坐凶向凶 -
主: 146(°) 巳山 方位-巽 生气: 坐吉向凶 +
灶: 356(°) 子山 方位-坎 延年: 坐吉向吉 +
卫: 60(°) 寅山 方位-艮 祸害: 坐凶向凶 ++
综合分数为3,较好的卦象,但需要崔吉避凶。此宅卦为离,属于东四命。按宅命相扶,以下年份出生的离命人入住最为恰当。
男性:1964, 1973, 1982, 1991, 2000, 2009, 2018。
女性:1967, 1976, 1985, 1994, 2003, 2012。
此外,以下年份出生的人同属东四命。亦有宅命相扶之效,入住也为恰当。
男性:1960(巽), 1961(震), 1963(坎), 1969(巽), 1970(震), 1972(坎), 1978(巽), 1979(震), 1981(坎), 1987(巽), 1988(震), 1990(坎), 1996(巽), 1997(震), 1999(坎), 2005(巽), 2006(震), 2008(坎), 2014(巽), 2015(震), 2017(坎)。
女性:1961(震), 1962(巽), 1968(坎), 1970(震), 1971(巽), 1977(坎), 1979(震), 1980(巽), 1986(坎), 1988(震), 1989(巽), 1995(坎), 1997(震), 1998(巽), 2004(坎), 2006(震), 2007(巽), 2013(坎), 2015(震), 2016(巽)。
门: 25(°) 丑山 方位-艮 祸害: 坐凶向凶 -
主: 146(°) 巳山 方位-巽 生气: 坐吉向凶 +
灶: 356(°) 子山 方位-坎 延年: 坐吉向吉 +
卫: 60(°) 寅山 方位-艮 祸害: 坐凶向凶 ++
综合分数为3,较好的卦象,但需要崔吉避凶。此宅卦为离,属于东四命。按宅命相扶,以下年份出生的离命人入住最为恰当。
男性:1964, 1973, 1982, 1991, 2000, 2009, 2018。
女性:1967, 1976, 1985, 1994, 2003, 2012。
此外,以下年份出生的人同属东四命。亦有宅命相扶之效,入住也为恰当。
男性:1960(巽), 1961(震), 1963(坎), 1969(巽), 1970(震), 1972(坎), 1978(巽), 1979(震), 1981(坎), 1987(巽), 1988(震), 1990(坎), 1996(巽), 1997(震), 1999(坎), 2005(巽), 2006(震), 2008(坎), 2014(巽), 2015(震), 2017(坎)。
女性:1961(震), 1962(巽), 1968(坎), 1970(震), 1971(巽), 1977(坎), 1979(震), 1980(巽), 1986(坎), 1988(震), 1989(巽), 1995(坎), 1997(震), 1998(巽), 2004(坎), 2006(震), 2007(巽), 2013(坎), 2015(震), 2016(巽)。